No.
6
FLOOR PLAN
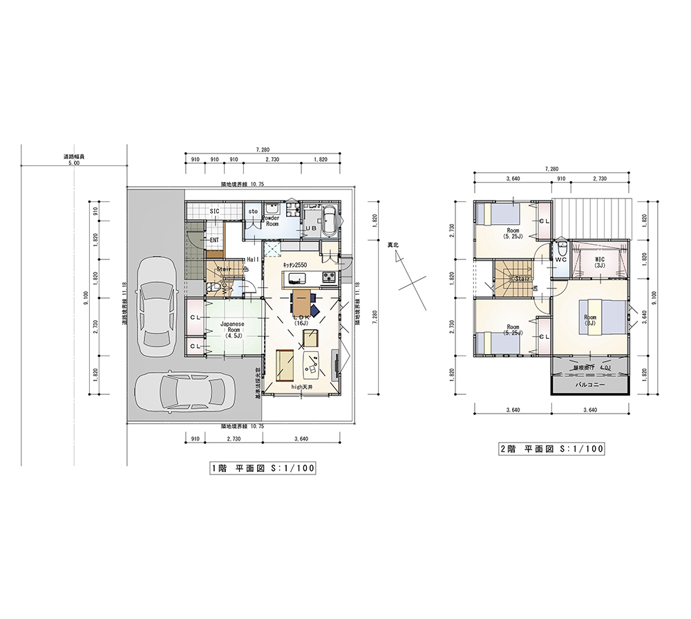
6区画 建物参考プラン
×
CLOSE
2LDK
+WIC
+SIC
+PANTRY
土地面積/134.08㎡(40.47坪)
建物面積/102.89㎡(31.06坪)
※その他の区画も参考プラン作成いたします。
開放的な
2方角地
ハイ天井付
LDK広々20帖
収納豊富な
間取設計
カースペース
並列2台可能
【No.6 建物完成イメージCG】 ※実際とは異なる場合がございます。
【No.6 建物完成イメージCG】 ※実際とは異なる場合がございます。
10区画の参考プランを見る
閉じる ×
No.
10
FLOOR PLAN
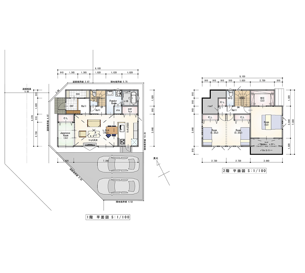
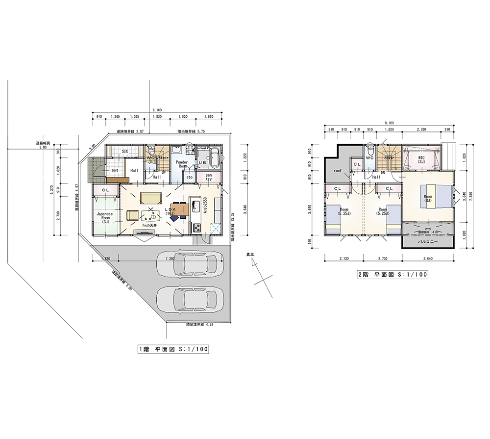
10区画 建物参考プラン
×
CLOSE
3LDK
+WIC
+SIC
+PANTRY
土地面積/134.87㎡(40.71坪)
建物面積/107.23㎡(32.37坪)
※その他の区画も参考プラン作成いたします。
ハイ天井付
LDK18帖
生活動線に
配慮
収納豊富な
間取設計
カースペース
並列2台可能
【No.10 建物完成イメージCG】 ※実際とは異なる場合がございます。
【No.10 建物完成イメージCG】 ※実際とは異なる場合がございます。
6区画の参考プランを見る
16区画の参考プランを見る
閉じる ×
No.
16
FLOOR PLAN
16区画 建物参考プラン
×
CLOSE
4LDK
+WIC
+SIC
土地面積/120.27㎡(36.30坪)
建物面積/101.02㎡(30.50坪)
※その他の区画も参考プラン作成いたします。
主寝室広々
8帖+WIC
洗面室にも
収納完備
生活動線に
配慮
カースペース
2台可能
【No.16 建物完成イメージCG】 ※実際とは異なる場合がございます。
【No.16 建物完成イメージCG】 ※実際とは異なる場合がございます。
10区画の参考プランを見る
17区画の参考プランを見る
閉じる ×
No.
17
FLOOR PLAN
17区画 建物参考プラン
×
CLOSE
4LDK
+WIC
+SIC
土地面積/119.65㎡(36.12坪)
建物面積/106.82㎡(32.25坪)
※その他の区画も参考プラン作成いたします。
ハイ天井付き
LDK19帖
主寝室広々
8帖+WIC
洗面室にも
収納完備
カースペース
並列2台可能
【No.17 建物完成イメージCG】 ※実際とは異なる場合がございます。
【No.17 建物完成イメージCG】 ※実際とは異なる場合がございます。
16区画の参考プランを見る
18区画の参考プランを見る
閉じる ×
No.
18
FLOOR PLAN
18区画 建物参考プラン
×
CLOSE
3LDK
+WIC
+SIC
+PANTRY
土地面積/121.73㎡(36.75坪)
建物面積/102.68㎡(31.00坪)
※その他の区画も参考プラン作成いたします。
全居室明るい
南面採光
主寝室広々
8帖+WIC
収納豊富な
間取設計
カースペース
並列2台可能
【No.18 建物完成イメージCG】 ※実際とは異なる場合がございます。
【No.18 建物完成イメージCG】 ※実際とは異なる場合がございます。
17区画の参考プランを見る
閉じる ×
岡田・宮山
に
関するお問い合わせ
当物件はおかげ様でご成約頂きました。ありがとうございました。
売主物件一覧に戻る