No.
1
FLOOR PLAN
1号棟 間取図
×
CLOSE
3LDK
+WIC
(4LDKに変更可能)
土地面積/206.30㎡(62.40坪)
有効面積/117.97㎡(35.68坪)
建物面積/99.80㎡(30.12坪)
建築確認番号/第H29SBC-確02148H号
ハイ天井の
15.67帖LDK
カースペース
並列2台可能
ゆとりの
主寝室7帖
ウォークイン
クローゼット
【1号棟 建物完成イメージCG】※実際とは異なる場合がございます。
【1号棟 建物完成イメージCG】※実際とは異なる場合がございます。
2号棟のプランを見る
3号棟のプランを見る
s
閉じる ×
No.
2
FLOOR PLAN
2号棟 間取図
×
CLOSE
3LDK
+WIC
土地面積/156.79㎡(47.42坪)
有効面積/115.13㎡(34.82坪)
建物面積/100.60㎡(30.37坪)
建築確認番号/第H29SBC-確02149H号
広々LDK
23.5坪
全室
明るい南向き
ウォークイン
クローゼット
カースペース
2台可能
【2号棟 建物完成イメージCG】※実際とは異なる場合がございます。
【2号棟 建物完成イメージCG】※実際とは異なる場合がございます。
1号棟のプランを見る
3号棟のプランを見る
閉じる ×
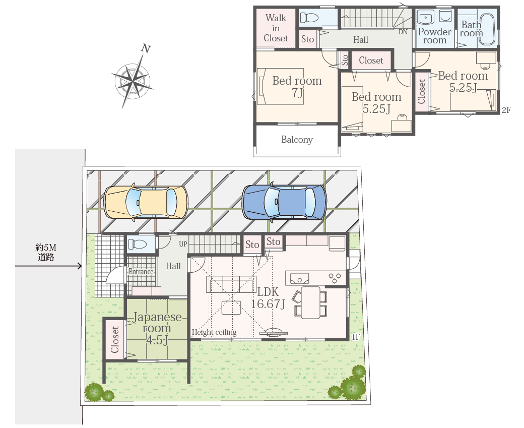
No.
3
FLOOR PLAN
3号棟 間取図
×
CLOSE
4LDK+WIC
土地面積/147.46㎡(44.60坪)
有効面積/115.22㎡(34.85坪)
建物面積/99.78㎡(30.12坪)
建築確認番号/第H29SBC-確02150H号
販売価格/3,260万円<税込>
ハイ天井の
16.67帖LDK
全室
明るい南向き
ウォークイン
クローゼット
カースペース
2台可能
【3号棟 建物完成イメージCG】※実際とは異なる場合がございます。
【3号棟 建物完成イメージCG】※実際とは異なる場合がございます。
1号棟のプランを見る
2号棟のプランを見る
閉じる ×
温水西
に
関するお問い合わせ
当物件はおかげ様でご成約頂きました。ありがとうございました。
閉じる ×